EL AYUNTAMIENTO REFORMARÁ EL RECINTO FERIAL DE TABLANTES QUE TENDRÁS MÁS ZONAS DE SOMBRA Y PODRÁ ACOGER MÁS CASETAS
- ???label.link.back???
- ???label.link.share???
14/10/2025
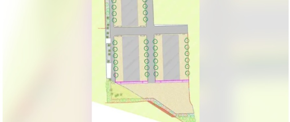
El Ayuntamiento de Espartinas ha sacado a licitación pública la ejecución de las obras del Recinto Ferial de Tablantes por un importe total de 321.314,41 euros. Las obras se centrarán en realizar una reforma parcial de la urbanización, consistiendo la intervención en:
• El acondicionamiento de la zona destinada a arboleda con la plantación de 34 árboles de gran porte.
• La sustitución de los actuales bordillos hundidos e instalaciones deterioradas de las 4 manzanas que forman la parcela.
• Acciones para proporcionar mayor potencia eléctrica, con la sustitución de farolas existentes por otras con tecnología LED
• Desmontaje de la actual zona de arriates para posibilitar la ubicación de mayor número de casetas durante la celebración de la feria.
• Se actuará sobre una superficie de 12 mil metros cuadrados situados entre la avenida Omeya y avenida Jerónimo Leal Navarro y la reforma se proyecta con el empleo de materiales de gran durabilidad, económicos y que requieran un mínimo mantenimiento.
Lo más llamativo es la plantación, siguiendo el Plan Municipal de Sombra del Ayuntamiento de Espartinas, de 34 árboles de gran porte, de la especie almez, que van a permitir la celebración de eventos durante el día en la época estival. Apuntar que el actual recinto ferial se inauguró en 2003 y hasta la fecha no se ha realizado ninguna rehabilitación en el espacio que acoge, entre otras citas, la Feria y Fiestas Patronales o la muestra de animales Espartinas Acoge.
• El acondicionamiento de la zona destinada a arboleda con la plantación de 34 árboles de gran porte.
• La sustitución de los actuales bordillos hundidos e instalaciones deterioradas de las 4 manzanas que forman la parcela.
• Acciones para proporcionar mayor potencia eléctrica, con la sustitución de farolas existentes por otras con tecnología LED
• Desmontaje de la actual zona de arriates para posibilitar la ubicación de mayor número de casetas durante la celebración de la feria.
• Se actuará sobre una superficie de 12 mil metros cuadrados situados entre la avenida Omeya y avenida Jerónimo Leal Navarro y la reforma se proyecta con el empleo de materiales de gran durabilidad, económicos y que requieran un mínimo mantenimiento.
Lo más llamativo es la plantación, siguiendo el Plan Municipal de Sombra del Ayuntamiento de Espartinas, de 34 árboles de gran porte, de la especie almez, que van a permitir la celebración de eventos durante el día en la época estival. Apuntar que el actual recinto ferial se inauguró en 2003 y hasta la fecha no se ha realizado ninguna rehabilitación en el espacio que acoge, entre otras citas, la Feria y Fiestas Patronales o la muestra de animales Espartinas Acoge.
Importe: 321.314,41 euros
Presentación de ofertas: Hasta el 23/10/2025 a las 23:59 horas
Presentación de ofertas: Hasta el 23/10/2025 a las 23:59 horas

